椥辻
建築条件無売土地!地下鉄「椥辻」駅 徒歩5分
建蔽率80%・容積率300%で、土地を有効活用しやすいです。
-
ローンシミュレーションこの物件を購入した場合の、月々の支払い価格の一例です。借り入れを保証するものではございません。
- 返済期間
-
- 金利
-
- ボーナス時の増額(1回分)
-
- 借入金額:
-
- 頭金:
-

- 毎月の返済額:
(※元利均等方式 金利5.00%まで ※返済年数5~50年まで入力できます)
(※ボーナスは年2回で計算しています。1000万円まで入力できます)
(※物件購入時、その他諸費用が発生する場合がございます)
情報の見方担当者のコメント 野村尚志

- 住宅用地に適しています。
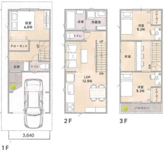
間口約3.8m×奥行約14.2m
生活至便な立地です♪
【周辺施設充実】
イオン山科椥辻 徒歩3分
サンディ 徒歩5分
阪急オアシス 徒歩8分
ドン・キホーテ 徒歩6分
郵便局 徒歩4分
勧修小 徒歩12分
勧修中 徒歩13分
物件概要
【売地】 物件番号:98014658 情報更新日:2025年11月13日 次回更新予定日:2025年11月27日所在地 京都府京都市山科区椥辻西浦町 交通 価格 1,220万円 土地の敷金/保証金 -/- 借地料/借地期間 -/- 土地面積(坪数) 57.72㎡(17.46坪) 坪単価 69.87万円 私道負担面積/セットバック -/無 高圧線下面積 - 傾斜地部分面積 - 路地状敷地 - 土地権利 所有権 接道状況 -(北 公道 3.8m 間口 6.0m) 都市計画 市街化区域 用途地域 近隣商業 建築条件 無 地目/地勢 宅地/平坦 建ぺい率 80% 容積率 300% 総区画数 - 販売区画数 - 国土法届出要否 不要 その他の法令上の制限 - 取引態様 専属専任媒介 現況 古家有 引渡時期 相談 引渡条件 現況渡 最適用途 住宅用地 物件番号 98014658 取引条件の有効期限 2025年11月27日 設備条件 - 都市ガス
- 公営水道
- 公共下水
- 電気有
取扱会社 - LIXIL不動産ショップ イリグチハウジング
- 京都府京都市北区紫竹西野山東町43-1 エントランスライフ西野山東 1階
- TEL:075-494-3023
- 京都府知事 (4) 第12990号
- (公社)京都府宅地建物取引業協会
(公社)近畿圏不動産流通機構
(公社)近畿地区不動産公正取引協議会
※地図上に表示される物件の位置は付近住所に所在することを表すものであり、実際の物件所在地とは異なる場合がございます。
物件お問い合わせ
同じエリアの売地



























